Jakob Aeschlimann
Liquidationen
Alter Kirchweg 4
CH-4800 Zofingen
Tel. +41 (0)62 752 88 44
Fax +41 (0)62 752 88 43
Mobile +41 (0)79 435 44 88
EMail: info@liq.ch
www.liq.ch

 

 

Wohnen in angenehmer Umgebung!!

 

 


In der Altstadt von Zofingen, vermieten wir an der Bärengasse 11 eine gemütliche, ruhige und sonnige

3 Zimmer-Maisonette-Dachwohnung
mit Balkon, Garten + Tiefgarage direkt im Haus

In der Liegenschaft gibt es 4 Wohnungen und ein Ladenlokal. Die Liegenschaft hat einen Garten (Grabengarten), in dem Sie die lauschigen Sommerabende verbringen können. Die Tiefgarage und den Veloraum können Sie über den direkten Zugang im Keller reichen.
 
Es gibt keinen Lift.
 
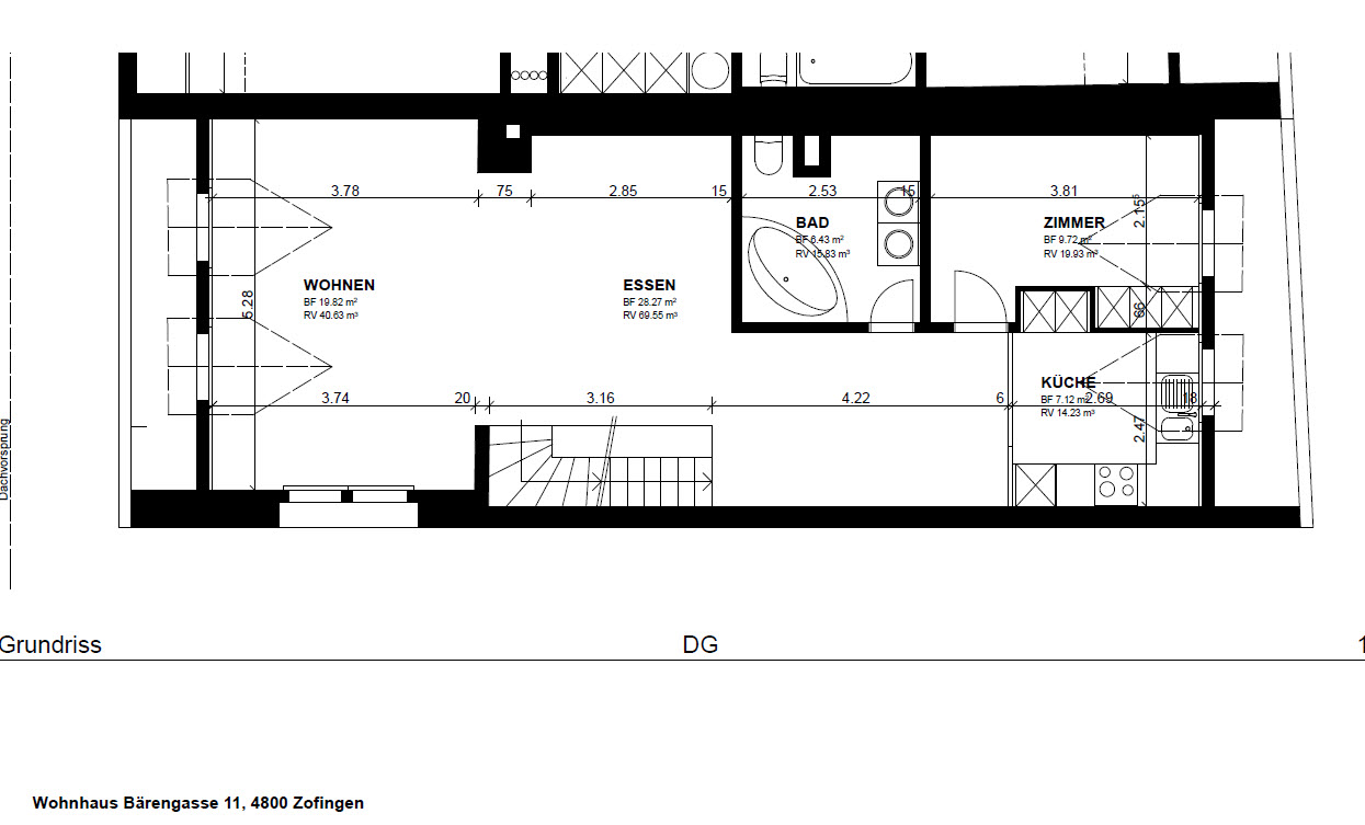
Die Wohnung hat ca. 106m2 Wohnfläche. Der Innenausbau hat ein warmes rustikles Ambiente. Die Wände mit Klosterputz, Bodenbeläge aus Ahorn-Parkett und Schiefer-Feinsteinzeugplatten. Die Decken mit Sichtbalken.
     
  Kein Lift  
  Raumangebot  
3. Obergeschoss Entre mit Treppenaufgang  
4. Obergeschoss Wohn- und Esszimmer mit Chemineofen  
 

Offene Küche mit Backofen + Steamer

 
  Zimmer mit Einbauschrank  
  Badezimmer mit Eckbadewanne, Tumbler und Waschmaschine  
  mit Balkon  
5. Obergeschoss Zimmer mit Einbauschrank  
  Dusche / WC  
  Abstellraum mit eigenem Boiler  
Keller Abstellraum  
Zur Mitbenützung: Veloraum, Gartenanlage,  
Tiefgarage Eingang zur Tiefgarage im Keller  
     
  Video Wohnung  
  Bildergalerie Wohnung  
  Bildergalerie Umgebung  
  BildergalerieTiefgarage  
  Lage: Uebersicht, Detail,  
  Grundriss 4.OG  
  Grundriss 5.OG  
  Video Garten  
     
Termin Per sofort oder nach Vereinbarung  
     
     
Mietzins Netto: Fr. 1'880.00 im Monat  
Heiz-/ Nebenkosten: Fr. 200.00 im Monat / akonto  
Mietzins Brutto: Fr. 2'080.00 im Monat  
     
Mietzinskaution: Fr. 3'000.00 (Konto bei einer Bank)  
     
Tiefgarage Fr. 140.00 im Monat / inkl. NK (optional)  
 


 Besucher: 0252356

Samstag,
4. Oktober 2025,
19:18 Uhr